Trilocale in vendita

Bologna, Via Pagno di Lapo Portigiani - Borgo Panigale
€ 274.000
Prezzo aggiornato
3 locali 3 locali
75 Mq 75 Mq
1 bagno 1 bagno

Trilocale in vendita

Bologna, Via Pagno di Lapo Portigiani - Borgo Panigale

Descrizione annuncio

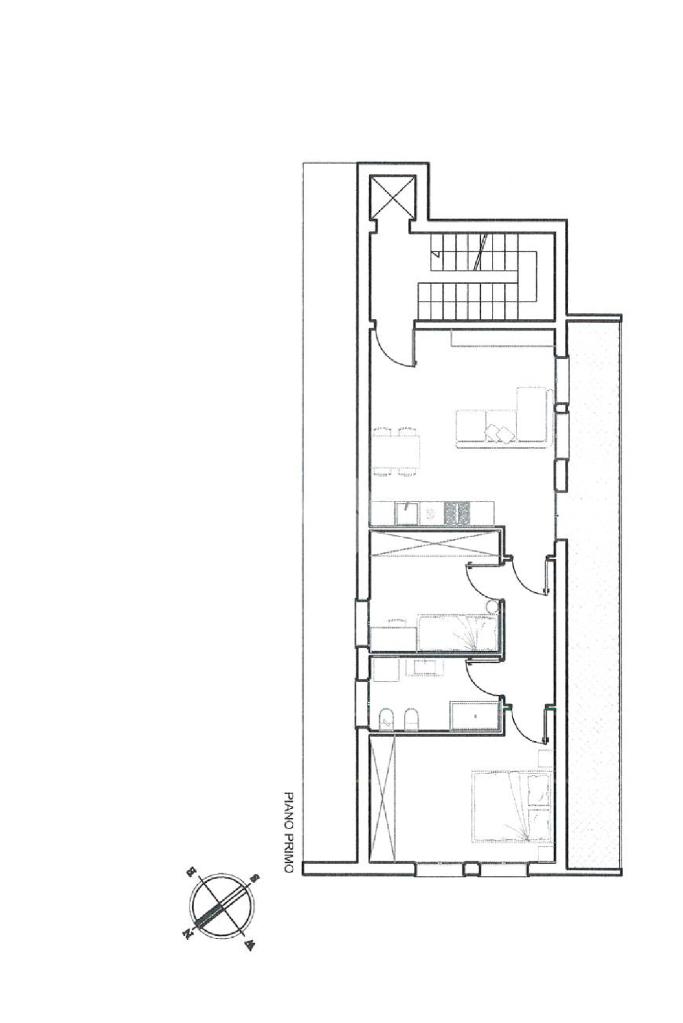
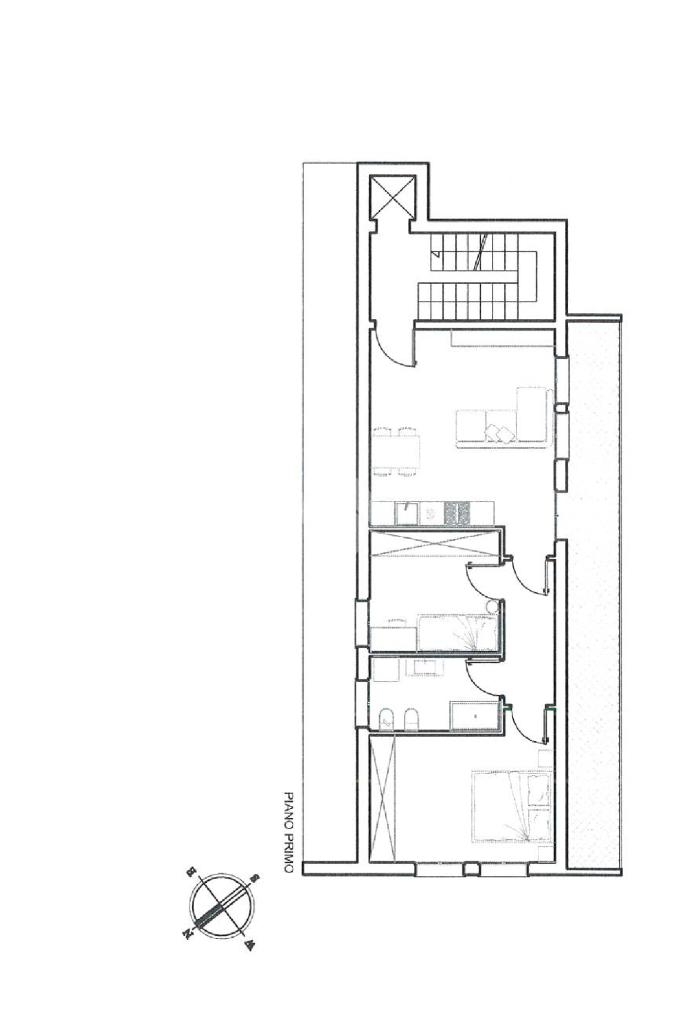
Nel cuore di Borgo Panigale, a Bologna, è disponibile un appartamento di 75 mq situato all'ultimo piano di un edificio senza spese condominiali. L'immobile, in fase di ristrutturazione nel 2025, offre un'opportunità unica grazie al bonus ristrutturazione. La disposizione interna comprende due camere da letto, un bagno e una zona giorno ampia . L'ampio balcone è ideale per momenti di relax all'aperto.

La zona centrale garantisce comodità e accesso a tutti i servizi essenziali. L'appartamento è dotato di aria condizionata e vanta una buona efficienza energetica, contribuendo a un comfort abitativo ottimale. Completa la proprietà un posto auto riservato e una cantina , un valore aggiunto in una zona così ben servita. Questa soluzione abitativa rappresenta un'opportunità interessante per chi cerca una casa funzionale e ben posizionata.

consegna fine 2025 il prezzo è più iva

Per ulteriori informazioni e dettagli siamo disponibili dalle 09:00 alle 13:00 e dalle 15:00 alle 20:00 presso la nostra sede a Borgo Panigale in Via Emilia Ponente n°345/F. Per fissare una visita all'immobile ci contatti allo 051/6192591.

Mostra tutto

Nelle vicinanze

Trasporto pubblico Trasporto pubblico
Casteldebole
Casteldebole
1,3 Km
Aeroporto
Aeroporto
2,0 Km
Scala
Scala
130 m
Chiesa Borgo Panigale
Chiesa Borgo Panigale
390 m
stazione di Bologna Borgo Panigale
stazione di Bologna Borgo Panigale
520 m
Ricariche auto elettriche Ricariche auto elettriche
Stazione Bologna Borgo Panigale | EnelX
470 m
Bologna Biancolelli | EnelX
1,2 Km
EnelX EVA+ Ipercoop Borgo Panigale
1,3 Km
Bologna Carroccio | EnelX
1,4 Km
Bologna Casteldebole | EnelX
1,4 Km
Scuole Scuole
Alessandro Volta
1,2 Km
Scuole
1,3 Km
Scuola Materna Seragnoli
1,8 Km
Scuola Giovanni XXIII - Istituto Comprensivo 1
2,0 Km
Scuola Media Zanotti
2,0 Km
Farmacia Farmacia
Farmacia Della Scala Dott.sse Abelli
330 m
Farmacia del Borgo S.N.C
640 m
Lloyds Farmacia Emilia Ponente
970 m
Natur House
1,2 Km
Erboristeria del Borgo
1,3 Km
Ospedali Ospedali
Primo Soccorso Aeroportuale
2,1 Km
Canale Sanitario
2,1 Km
Ospedale Privato Santa Viola
2,3 Km
Croce Rossa Italiana corpo militare
2,5 Km
Croce Rossa Italiana - Comitato di Bologna
2,7 Km
Supermercati Supermercati
Lidl
310 m
In's
920 m
Iper Borgo
1,2 Km
CONAD City via de Nicola
1,3 Km
Conad
1,8 Km
Negozi Negozi
Danubiana
120 m
Morbidissime Bologna
150 m
Negozi
430 m
Alimentari di Maselli Marco
470 m
Raj
870 m
Bar Bar
dalla Lù
120 m
Bar Tiffany
280 m
Bar Spiaggia - La Streghetta Cafè
310 m
Bar Pasticceria del Borgo
330 m
Bar
330 m
Ristoranti Ristoranti
Il Randagio
160 m
Sushi Day
160 m
Ristorante Pizzeria Vecchio Fiume
190 m
Il Pavaglione
290 m
Pizzeria 3D
300 m
Mostra tutto

Caratteristiche

Rif.:
61147717
Piano:
2 di 2 (ultimo Piano)
Posti auto:
1
Balconi:
1
Camere da letto:
2
Arredamento:
Assente
Mostra tutto
Prezzo Prezzo
€ 274.000
Rata mutuo Rata mutuo
€ 1.277 / mese
Spese annue Spese annue
€ 500
Proponi il tuo prezzoProponi il tuo prezzo

Classe Energetica

D
D
D
D
D
D
D
D
D
EP globale non rinnovabile:
112.00 kW h/m² anno
EP globale rinnovabile:
33.00 kW h/m² anno
EP invernale del fabbricato:
EP estiva del fabbricato:
Anno di costruzione:
1995
Riscaldamento:
Autonomo
Tipo impianto:
A radiatori
Tipo alimentazione:
Aria

Prezzo ridotto di €1 (7%%)

Ti interessa visionare l'immobile?

Fissa un appuntamento  Fissa un appuntamento

Richiedi informazioni

Clicca su Leggi per aprire l'informativa
* Questi campi sono obbligatori

Calcola il tuo mutuo

Semplice e senza impegno
Anticipo

( % )
Mutuo

( % )

pochi semplici passi

inserisci i tuoi dati
Questionario completato
Grazie per aver richiesto un appuntamento senza impegno con un nostro Consulente del Credito e Assicurativo.

Hai inserito correttamente tutti i dati necessari e a breve riceverai una e-mail con un link da convalidare per inviare i tuoi dati.
Affiliato
D.house Srl
Via Emilia Ponente, 345/F 40132 Bologna (BO)

Il nostro staff


  • Massimo Colangelo
    Affiliato

  • Domenico De Sio
    Collaboratore

  • Giuseppe Esposito
    Responsabile
Via Emilia Ponente, 345/F 40132 Bologna (BO)
Zona: Borgo Panigale-Lavino di Mezzo
Mostra su mappa
Orari: dal lunedì al venerdì dalle 09.00 alle 13.00 e dalle 15.00 alle 20.00sabato dalle 09.00 alle 13.00 e dalle 15.00 alle 18.00
Affiliato
D.house Srl
Via Emilia Ponente, 345/F 40132 Bologna (BO)

2025 Tecnocasa Franchising S.p.A. - P. IVA 08365160152 - Via Monte Bianco 60/A 20089 Rozzano (MI). Ogni agenzia ha un proprio titolare ed è autonoma. Privacy policy | Policy utilizzo | Cookie policy