 
			 
				 
	 
		A Borgo Panigale, a Bologna, è disponibile un appartamento in vendita che offre una combinazione di comfort e funzionalità.
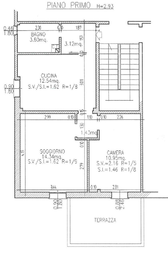
Situato in un edificio civile del 1960, ristrutturato nel 2000, l'immobile si estende su 60 mq e presenta una distribuzione ottimale degli spazi. L'appartamento è composto da tre locali: una camera da letto, un bagno una cucina abitabile e un soggiorno che possono essere adattate alle diverse esigenze. Uno dei punti di forza è il TERRAZZO ABITABILE , ideale per momenti di relax all'aperto. L'aria condizionata garantisce comfort durante tutto l'anno. Le spese condominiali contenute rappresentano un ulteriore vantaggio economico. Completa la proprietà una cantina di generose dimensioni, perfetta per lo stoccaggio. L'immobile è proposto a un prezzo competitivo, rendendolo un'opportunità interessante per chi cerca una soluzione abitativa funzionale e ben posizionata.
per ulteriori informazioni e dettagli siamo disponibili dalle 09:00 alle 13:00 e dalle 15:00 alle 20:00 presso la nostra sede a Borgo Panigale in Via Emilia Ponente n°345/F. Per fissare una visita all'immobile ci contatti allo 051/6192591.
Ogni agenzia ha un proprio titolare ed e' autonoma - Le presenti informazioni non costituiscono elemento contrattuale
Ti interessa visionare l'immobile?