Villa singola in vendita

Bentivoglio, Via Ilaria Alpi - Castagnolo Minore
Informazioni in agenzia
6 locali 6 locali
270 Mq 270 Mq
3 bagni 3 bagni

Villa singola in vendita

Bentivoglio, Via Ilaria Alpi - Castagnolo Minore

Descrizione annuncio

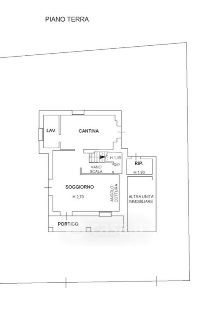
Nel cuore di Castagnolo Minore, nel comune di Bentivoglio, si trova una villa singola di 270 mq, costruita e ristrutturata nel 2020. Questa residenza signorile offre un ambiente elegante e moderno, con finiture di pregio che esaltano ogni dettaglio.

La villa si sviluppa su un piano basso e comprende OTTO locali, tra cui otto camere da letto e tre bagni, garantendo ampi spazi per ogni esigenza. Un balcone e tre ulteriori camere completano la disposizione interna.

Il giardino privato è un'oasi di relax, ideale per momenti di comfort e per organizzare barbecue e feste all'aperto. La proprietà include un box e un posto auto, offrendo praticità e comodità. La classe energetica A assicura efficienza e risparmio energetico, mentre l'assenza di spese condominiali rappresenta un ulteriore vantaggio. L'aria condizionata completa l'offerta, rendendo questa villa un'opportunità unica per chi cerca una dimora nuova e raffinata. riscaldamento a pavimento e domotica

Per ulteriori informazioni e dettagli siamo disponibili dalle 09:00 alle 13:00 e dalle 15:00 alle 20:00 presso la nostra sede a Borgo Panigale in Via Emilia Ponente n°345/F. Per fissare una visita all'immobile ci contatti allo 051/6192591.

Mostra tutto

Nelle vicinanze

Trasporto pubblico Trasporto pubblico
stazione di Funo Centergross
stazione di Funo Centergross
1,9 Km
Castagnolo Minore
Castagnolo Minore
150 m
Castagnolo Min. Case Nuov
Castagnolo Min. Case Nuov
160 m
Ricariche auto elettriche Ricariche auto elettriche
Interporto Bologna S.p.A.
2,2 Km
Farmacia Farmacia
Farmacia
1,9 Km
Parafarmacia
2,1 Km
Parafarmacia Conad
2,5 Km
Supermercati Supermercati
Conad
2,5 Km
La Saponeria
2,6 Km
EuroSpin
2,8 Km
Negozi Negozi
Panificio
270 m
Northland
2,7 Km
privè
2,7 Km
Amelie Folies
2,7 Km
Stress
2,7 Km
Bar Bar
Bar Tarola
1,9 Km
Ristoranti Ristoranti
Magazzini Generali
1,2 Km
Intercenter
1,7 Km
Nuova Valentina
1,7 Km
Macao
1,8 Km
Trattoria Giuliana
1,8 Km
Mostra tutto

Caratteristiche

Rif.:
61170213
Piano:
2 di 2 (Piano basso)
Box:
1
Posti auto:
1
Balconi:
1
Camere da letto:
8
Mostra tutto
Prezzo Prezzo
Informazioni in agenzia
Spese annue Spese annue
€ 1
Proponi il tuo prezzoProponi il tuo prezzo

Classe Energetica

A4
A4
A4
A4
A4
A4
A4
A4
A4
EP globale non rinnovabile:
44.00 kW h/m² anno
EP globale rinnovabile:
44.00 kW h/m² anno
EP invernale del fabbricato:
EP estiva del fabbricato:
Anno di costruzione:
2020
Riscaldamento:
Autonomo
Tipo impianto:
A pavimento
Tipo alimentazione:
Gasolio

Ti interessa visionare l'immobile?

Fissa un appuntamento  Fissa un appuntamento

Richiedi informazioni

Clicca su Leggi per aprire l'informativa
* Questi campi sono obbligatori
Affiliato
D.house Srl
Via Emilia Ponente, 345/F 40132 Bologna (BO)

Il nostro staff


  • Massimo Colangelo
    Affiliato

  • Julia Batista
    Coordinatrice

  • Giuseppe Esposito
    Responsabile
Via Emilia Ponente, 345/F 40132 Bologna (BO)
Zona: Borgo Panigale-Lavino di Mezzo
Mostra su mappa
Orari: dal lunedì al venerdì dalle 09.00 alle 13.00 e dalle 15.00 alle 20.00sabato dalle 09.00 alle 13.00 e dalle 15.00 alle 18.00
Affiliato
D.house Srl
Via Emilia Ponente, 345/F 40132 Bologna (BO)

2026 Tecnocasa Franchising S.p.A. - P. IVA 08365160152 - Via Monte Bianco 60/A 20089 Rozzano (MI). Ogni agenzia ha un proprio titolare ed è autonoma. Privacy policy | Policy utilizzo | Cookie policy